La description
-
La description:
Prochainement disponible - nouvelle résidence de 57 neufs du T1 au T4 - sur la commune d'AUXERRE
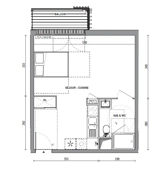
A Auxerre, à proximité de la Gare, loue appartement T1 de 34m² au 1er étage avec balcon
comprenant une entrée avec placard, cuisine ouverte sur séjour, salle d'eau avec douche accessible PMR et WC
- - Loyer : 436.48E (eau chaude inclus)
- - Dépôt de garantie : 374E
- - Ascenseur, local 2 roues
- - Possibilité d'une place de parking privative avec supplément
- - Résidence avec des logements LOCIZY, destinés aux étudiants et jeunes actifs
- - Pas de frais de dossier, loyer payable à terme échu, possibilité d’APL
- - Possibilité d’enregistrer votre demande directement sur le site de Domanys
Pour tout renseignement, contacter Madeline CHOCAT au 03 86 18 09 50 – madeline.chocat@domanys.fr
Dépôt du dossier CERFA COMPLET avant le 27 AVRIL 2026
-
CLASSE ENERGIE : DPE en cours -
Les informations sur les risques auxquels ce bien est exposé sont disponibles sur le site Géorisques : www.georisques.gouv.fr
Informations
- Typologie: Appartement
- Surface: 34 m²
- Nombre de pièce(s): 1
-
shortcode_DPE_CONSO:
Classe énergie
ABCDEFGLogement à consommation énergétique excessive
-
shortcode_DPE_GAZ:
GES
ABCDEFGLogement à consommation énergétique excessive
- Étage: 01
- Type de chauffage: individuel
- Énergie de chauffage: Electricité
- Département: 89
- Distribution eau chaude: NC
- Loyer: 375 €
- Charges locatives: 62 €
- Loyer total (Charges comprises): 437 €
- Ascenseur: Oui
- Dépôt de garantie: 0
- Référence: 05245000010000100016

